Clarendon Homes – BOSTON 35
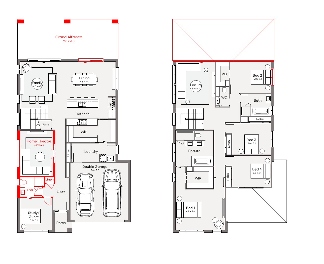
LOT 722 | LOT SIZE 634m2 | BOSTON 35

- 4.5
- 2.5
- 2
Clarendon Homes – BOSTON 35
BOSTON 35
LOT 722
LOT SIZE 634m2
INCLUSIONS
- Parisi Kitchen/Laundary/Bathroom Pack
- Two sets of two (4) pot drawers
- Waterfall edge to island bench
- Gainsborough Door Hardware Pack
- Frameless Shower Screens
- Freestanding Baths
- 7 Star BASIX
- 3.5kW of roof top solar panels and inverter
- 2750mm ceilings to ground floor
5.8kW battery to suit solar system
30 x Downlights - Choice of Colorbond roof OR premium concrete roof tiles
- Tiling to front porch & alfresco
- Epoxy coating applied to garage floor (plain grey colour)
- 40mm edge stone benchtop to kitchen in a choice of colours
- 900mm deep kitchen island bench top
- Feature window to kitchen splashback (Selected designs only)
- Soft closing drawers and doors to kitchen and vanities
- Cold water point to fridge space
- Full height tiling to bedroom 1 ensuite and main bathroom
- Flush Finish floor tiles to all wet areas
- Shower niche included to bedroom 1 ensuite and main bathroom
- Harmony Bassini Back-to-Wall Toilet Suite with soft close lid
- 20mm edge stone for laundry benchtop
- Aluminium stacker door in lieu of standard sliding door,
- Corinthian AWO5G pivot door in painted or stained finish for entry door
including the recessed door tracks to alfresco
Upgraded Premium Carpethure
All images and drawings including landscape plans are for illustrative purposes & should be used as a guide only. Purchasers are advised to refer to the Land Contract and/or Builders Tender and Contract for precise dimensions, specifications and inclusions, price may change subject to selected inclusions. Builder reserves the right to revise plans, specifications, materials and suppliers without notice.
A beautiful lifestyle awaits
At Haven Estate you’ll live richly surrounded by some of NSW’s best beaches, natural beauty, incredible food and wine options, plus an outdoor lifestyle you and your family will love.
